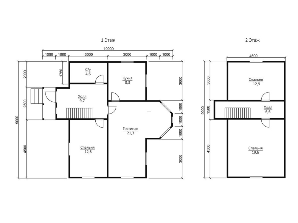
Проект №34 Дом с эркером 9х10

каркас из строганой доски
Создайте свой план для этого проекта
и отправьте его нам на расчет в один клик.
Каркасный дом (150 мм) 9х10 Толщина утепления 150 мм 3098500 Заказать
Каркасный дом (200 мм) 9х10 Толщина утепления 200 мм 3308500 Заказать

Доставка включена в стоимость дома!

Для того, чтобы получить личную планировку, пользуйтесь нашим планировщиком.

При помощи планировщика вы можете создать схемы, планы, чертежи, эскизы будущего дома с эркером, мансардой, с необходимым числом комнат. Вы сможете получить отличный проект, который отвечает вашим требованиям.

Заказывая дом можно выбрать вид крыши: двускатная, четырехскатная и вальмовая. Двухскатную крышу считают самой востребованной у малометражных домов.

Популярные на текущий момент размеры: мини - до 50 квадратных метров (чаще всего, одноэтажные дома); компактные - от 70 кв. М до 100 квадратов (обычно 2х этажные); большие дома - начиная от 150 квадратов и больше.

Готовы предложить дуплексы - каркасные дома с двумя входами, рассчитанные на несколько семей. Подобные дома строятся для нескольких хозяев и разделяются на две части, для каждой половины - отдельный вход.


Наши работы

Перейти в галерею


Комплектация

Площадь застройки: 90 м2
Длина: 9 м
Ширина: 10 м
Общая площадь: 86.8 м2
Исполнение Под ключ (с отделкой)
Фундамент Свайно-винтовой или ж/б сваи (рассчитываются отдельно).
Гидроизоляция фундамента Рубероид в два слоя.
Основание (обвязка) Из обрезного бруса 150х150 мм. 150х200 мм. согласно выбранной толщине утепления. Торцевая доска строганая 45х145/45х195+/-5 мм. согласно выбранной толщине утепления. Обработка антисептиком.
Цокольное перекрытие Строганая доска камерной сушки 45х145/45х195+/-5 мм. с шагом 590 мм. Обработка антисептиком.
Пол черновой Обрезная доска камерной сушки 20х100 мм.
Влаго-ветрозащита чернового пола Мембрана Ондутис А100.
Внешние стены Стойки каркаса из строганой доски камерной сушки 45х145/45х195+/-5 мм. с шагом 590 мм. Верхняя двойная и нижняя обвязки из строганой доски камерной сушки 45х145/45х195+/-5 мм. Разгрузочный ригель из строганой доски 45х145+/-5 мм. Укосины из строганой доски 20х95 мм.
Перегородки Стойки каркаса из строганой доски камерной сушки 45х95+/-5 мм. с шагом 590 мм. Верхняя двойная и нижняя обвязки из строганой доски 45х95+/-5 мм. Разгрузочный ригель из строганой доски камерной сушки 45х145+/-5 мм. Укосины из строганой доски камерной сушки 20х95 мм.
Сборка каркаса На гвозди.
Высота от пола до потолка Дом одноэтажный: 2,5 м. Дом с мансардой: 1-ый этаж- 2,5 м.
2-ой этаж (мансарда)- 2,3 м.
Дом в полтора и два этажа:
1-ый этаж 2,5 м.
2-ой этаж 2,4 м. в полутораэтажном доме
2,5 м. в двухэтажном доме.
Внешняя отделка стен Имитация бруса камерной сушки, сорт АВ, толщиной 17 мм. Монтаж через строганый брусок камерной сушки 45х45+/-5 мм. (вентилируемый фасад). Влаго-ветрозащитная мембрана- Ондутис А100.
Внутренняя отделка стен, перегородок Евровагонка камерной сушки, сорт АВ, толщиной 12,5 мм. по строганой рейке 20х40+/-5 мм. либо ГКЛ 12,5 мм.
Отделка потолка Евровагонка камерной сушки, сорт АВ толщиной, 12,5 мм. по строганой рейке 20х40+/-5 мм. либо ГКЛ 12,5 мм.
Пол чистовой Шпунтованная доска камерной сушки толщиной 35-36 мм. сорт АВ. по строганой рейке 20х40+/-5 мм. либо шпунтованная ДСП 16 мм. по разряженной обрешётке из строганой доски камерной сушки 20х95+/-5 мм.
Утепление (пол, потолок) Минеральная вата Knauf 150/200 мм. согласно выбранной толщине утепления.
Утепление стен Плитный утеплитель Rockwool, толщиной 150/200 мм. согласно выбранной толщине утепления.
Звукоизоляция перегородок Плитный утеплитель Rockwool, толщиной 100 мм.
Пароизоляция (стены, перегородки, пол, потолок) Плёнка Ондутис R70. Дополнительная герметизация нахлёстов/примыканий пароизоляционной плёнки клейкой лентой Delta.
Окна Двухкамерные стеклопакеты ПВХ белого цвета, профиль 60 мм. В комплекте: отливы, подоконники, москитные сетки.
Двери Входная- металлическая, утеплённая (Россия). Межкомнатные- филёнчатые.
Наличники на окна и двери Наличник деревянный, строганый, камерной сушки 70-90 мм. с двух сторон.
Лестница (при наличии второго этажа) Деревянная, одно или двухмаршевая. Перила- заводские резные, балясины- заводские точеные, устанавливаются стартовые точёные столбы. Ступени 40х200 мм. Тетива лестницы- 90х140 мм.
Крыша Двускатная, ломаная или вальмовая в соответствии с проектом.
Стропильная система Выполнена из строганой доски камерной сушки 45х145/45х195+/-5 мм. Шаг установки стропил 590 мм.
Обрешётка Выполняется из строганой доски камерной сушки толщиной 20х95+/-5 мм. Шаг крепления обрешетки 350 мм. Контробрешётка выполняется из строганого бруска камерной сушки 45х45+/-5 мм. Крепится по стропилам (вентиляционный зазор).
Подкровельная мембрана Ондутис А100
Кровельное покрытие (на выбор) Металлочерепица 0,45 мм. Цвет на выбор.
Фронтоны (при наличии) Каркас из строганой доски камерной сушки 45х145/45х195+/-5 мм. Обшиваются имитацией бруса камерной сушки, сорт АВ, толщиной 17 мм. Монтаж через строганый брусок камерной сушки 45х45+/-5 мм. (вентилируемый фасад). Влаго-ветрозащитная мембрана- Ондутис А100. Монтаж вентиляционных решёток.
Свесы крыши Ширина 400 мм. Подшиваются вагонкой камерной сушки, сорт АВ.
Терраса/балкон (при наличии) Устанавливаются опорные столбы из строганного бруса камерной сушки 140х140 мм.
Отделка потолка террасы/балкона Евровагонка камерной сушки толщиной 12,5 мм. сорт АВ.
Пол террасы/балкона Шпунтованная доска камерной сушки толщиной 35-36 мм. сорт АВ.
Ограждение террасы/балкона Перила- строганая доска. Балясины- точеные, фигурные. Либо ограждение в скандинавском стиле. Устанавливаются ступени у входа.
Допуск на геометрические параметры Составляет +/- 50 мм по длине с каждой стороны.
Допускается стыковка имитации бруса, вагонки и половой доски По всему периметру стен дома (если ширина и длина дома более 6,0 метров). Вагонки и доски пола в каждой отдельной комнате.
Допуски по имитации бруса, вагонке, доске +/- 5 мм.
В стоимость включена Доставка комплекта материала в радиусе 500 км. от г. Пестова Новгородской области и сборка дома на вашем участке.
Гарантия 5 лет.
Бытовка строительная 2,0х3,0 м. каркасно-щитовая. Стоимость 23000 руб. Остаётся на участке Заказчика.
Туалет 1,0х1,0 м. каркасно-щитовой. Стоимость 12000 руб. Остаётся на участке Заказчика.
Генератор Стоимость аренды на весь срок строительства 15000 руб. ГСМ за счёт Заказчика.

Строительство домов выполняется в двух вариантах: полностью под ключ и под усадку, когда дом отстаивается на протяжении определенного времени.

Зимой профессионалы советуют строить дом в холодную погоду, чтобы каркас не успел промокнуть, в летнюю пору - не под дождем.

Оптимальными для сада или дачи являются дома на винтовых сваях, у нас вы увидите одноэтажные и полуторатажные дома.

Если дом строится для проживания в течение всего года, предлагаем теплые коттеджи и дома на ленточных и плитных фундаментах.

Мы можем предложить два вида утепления: 200 мм и 150 мм. Каркасные дома с толщиной утеплителя 150 миллиметров получаются дешевле, но менее энергоэффективными.

Дополнительные услуги


Дом с каркасной структурой эркером, согласно эскизу 34 полутораэтажный с теплоизоляционной двускатной конструкцией крыши, отличается экологической чистотой, в связи с использованием OSB-плит, теплоизоляционной ваты, а это гарантирует отличную защиту от морозов, замечательный микроклимат в доме. Габариты постройки составляют 9х10 м., общая жилая площадь - 86.8 кв.м.. Наша компания в минимальные сроки выстроит каркасник по персональному или типовому проекту в Керчи в оптимальное для вас время года и на выбранном вами типе грунта.

Популярные проекты


Каркасные дома с мансардой Каркасные дома 8х8 Бани из бруса 6х6
хит продаж
Тип:
Общая площадь: 2
1962760
от 1869300
хит продаж
Тип:
Общая площадь: 2
2015260
от 1919300
хит продаж
Тип:
Общая площадь: 2
2791840
от 2658900
Дома из бруса

Заказать или задать вопрос




Дома из бруса в Керчи
Отзывы из Яндекс Карт
4.9
98 отзывов
Дополнительные услуги 88%
2 154 оценок
Комплектации 89%
1 535 оценок
Планировки 90%
2 484 оценок
Проекты 93%
2 231 оценок
С
Ванда Рубцова27.05.2025 г.
Благодарю за строительство бани, которая радует нас каждые выходные. Планировка удобная, все продумано для комфортного отдыха большой компанией. Мастера дали ценные советы по уходу за древесиной, чтобы она долго сохраняла свой первоначальный вид. Качество работы на высшем уровне.
Отзывы из Google Карт
4.8
59 отзывов
Дополнительные услуги 88%
2 154 оценок
Комплектации 89%
1 535 оценок
Планировки 90%
2 484 оценок
Проекты 93%
2 231 оценок
С
Валя Г.27.01.2025 г.
Построил баню из профилированного бруса и теперь понимаю, что значит настоящий русский пар! Дерево высушено идеально, никаких щелей и зазоров, прогревается быстро и держит температуру долго! Бригада работала чисто и аккуратно, убрали всю территорию после себя, оставили только положительные эмоции! Рекомендую!
Отзывы из 2гис
4.9
35 отзывов
Дополнительные услуги 88%
2 154 оценок
Комплектации 89%
1 535 оценок
Планировки 90%
2 484 оценок
Проекты 93%
2 231 оценок
С
Андрей15.06.2025 г.
Приятно удивил детальный подход к составлению договора, где были прописаны все нюансы, начиная от спецификации материалов и заканчивая сроками выполнения каждого этапа строительства.

Заказать или задать вопрос

Заказать звонок

Напишите нам
Здравствуйте! Отправьте нам вопрос или заявку в WhatsApp